Projektering & tilbud

Udvalgt projekt

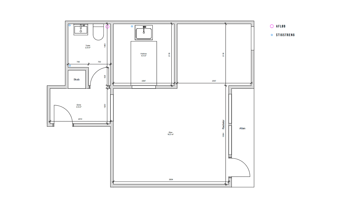
Totalrenovering af 18 lejligheder – projektering og udbud

Mauritzen Gruppen har udarbejdet skitsetegninger, arbejdsbeskrivelser og udbudsmateriale til totalrenoveringen af 18 lejligheder for en erhvervskunde. Formålet var at skabe en klar og ensartet rød tråd i projektet på tværs af de forskellige entrepriser, så alle dele af renoveringen hænger sammen og understøtter et effektivt byggeforløb.

Vi bidrog med vores ekspertise inden for projektering og udbud, herunder forslag til udførelsesmetoder og koordinering mellem fagdiscipliner. Projektet blev tilbudt som hovedentreprise, og vi har leveret vores materiale til kunden.

Selvom vi ikke blev valgt som den endelige hovedentreprenør, viser projektet vores evne til at udarbejde detaljerede og gennemarbejdede løsninger, der kan danne grundlag for komplekse renoveringsprojekter.

FASE

Udbudsprojekt

LOKATION

Kingosparken

TYPE

Renovering

STØRRELSE

18 lejligheder

BYGHERRE

Erhverv

Klik på billedet for at se tegningerne til

Kingosparken

Plantegning (sort/hvid streg)