Ny tilbygning & totalrenovering

Udvalgt projekt

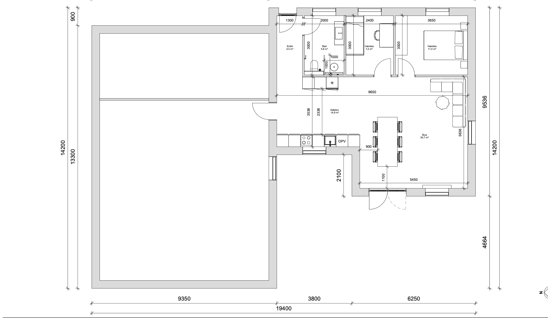
Ny tilbygning og totalrenovering i Hellerup – totalløsning udført af Mauritzen Gruppen

Mauritzen Gruppen har vundet opgaven med en ny tilbygning på omkring 90 m² i Hellerup, hvor vi leverer vores komplette totalløsning. Vi står for alt fra projektering og udarbejdelse af tegningsmateriale til indhentning af byggetilladelse og den efterfølgende udførelse.

I tæt dialog med bygherre fastlægges tilbygningens udformning, værelsesstørrelser og materialevalg, så den både matcher familiens behov og integreres harmonisk med det eksisterende hus. Tilbygningen skaber en funktionel forbindelse mellem den eksisterende ejendom og det nye område, samtidig med at den får egen indgang, så boligen tilpasses familiens nye livssituation, hvor en far flytter sammen med sin datter og hendes børn.

Indvendigt i det eksisterende hus udføres en gennemgribende renovering: alle overflader, vægge og lofter malerbehandles, gulvene får nyt liv med slibning og behandling, og toilet, bad og garderobeskab i stueetagen lægges sammen til ét stort, funktionelt badeværelse. Før nedrivning udføres miljøprøver for at sikre korrekt håndtering af affald, hvorefter de nye installationer, bruseniche, fliser, sanitet og malerarbejde udføres med fokus på kvalitet og funktionalitet.

Med Mauritzen Gruppens totalløsning sikres et velkoordineret og trygt byggeforløb, hvor arkitektonisk helhed, materialekvalitet og håndværksmæssig præcision går hånd i hånd.

Tegninger kommer snarest.

ENTREPRISEFORM

Hovedentreprise

LOKATION

Hellerup

TYPE

Totalløsning med tegningsmateriale

BYGHERRE

Privat

Klik på billedet for at se tegningerne til

Tilbygning & totalrenovering i Hellerup

Plantegning (teknisk tegning)